villa f, grand-saconnex

infos

Maître d’ouvrage  Privé
Lieu  Grand-Saconnex, Genève
Dates projet  1999 - 2000
Dates réalisation  2000 - 2001
Surface  210 m2
Volume  920 m3
Programme  Villa individuelle
Team projet  Philippe Meier, Philippe Ehinger 
Architecte associés  Martine Perret
Ingénieur civil  Christian Nourisse
Géomètre  Christian Haller
Photographe  Claudio Merlini

 

 

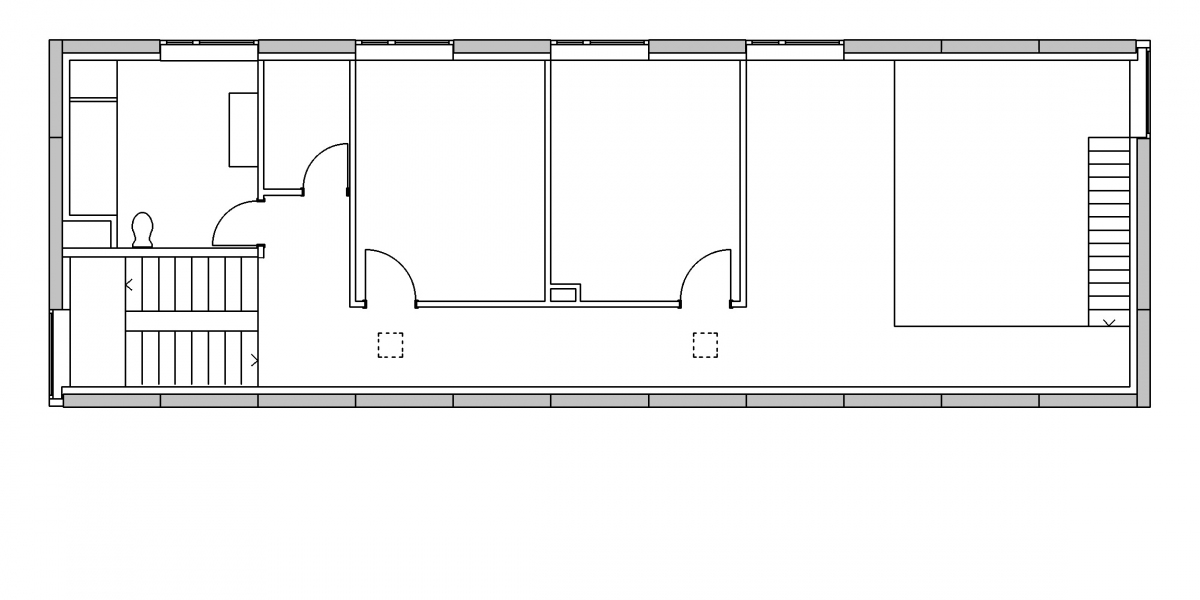
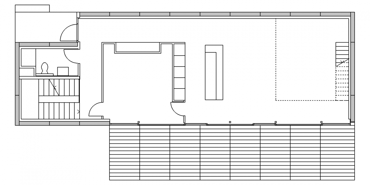
Réalisée avec un budget modique, cette villa cherche dans la rationalité de la mise en œuvre les fondements de sa plasticité et de son esthétique. Elle se présente sous la forme d’un parallélépipède pur, de proportion allongée. Les parcours intérieurs et la disposition des pièces de jour et de nuit, en relation avec le paysage, ont défini le dessin de l’enveloppe et de ses ouvertures. 
Une longue baie vitrée au rez-de-chaussée ouvre les pièces de jour sur une terrasse en bois vers le jardin. A l’étage, la coupe s’inverse pour ouvrir les chambres à l’est par de grandes fenêtres carrées. L’entrée de la villa est marquée par un évidement du volume sur l’angle Nord.
Le système constructif est économique et durable: des panneaux de façade en béton préfabriqué porteurs et des dalles industrielles. Les menuiseries, à fleur, sont réalisées en aluminium éloxé.