collège 'derrière la tour', payerne

infos

Maître d’ouvrage  Commune de Payerne
Lieu  Payerne, Vaud
Concours sur invitation  1999
Surface  7'850 m2
Volume  32'800 m3
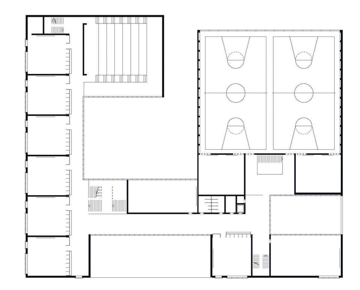
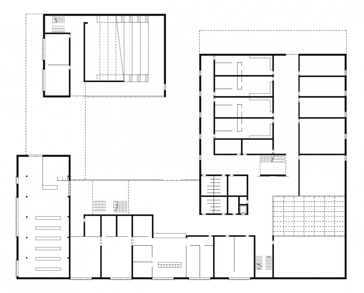
Programme  Salles de classe, salles spéciales, aula, salle de gymnastique double
Team projet  Philippe Meier, Thomas Bolliger, Frank Herbert, Edson Cayana, Catherine Bentele
Architecte associé  Jean-Paul Chabbey

 

 

Au pied des murs de la ville, face à la tour Barraud, la nouvelle école déroule ses activités autour de la cour, espace majeur dont la typologie évoque les grands référents locaux que sont l’Abbatiale et le Tribunal. 

L’aula et la salle de gymnastique sont placées aux extrémités du système compositif définissant le caractère de retournement du projet, l’une s’ouvrant vers la cour, et l’autre vers le jardin à la hauteur des frondaisons. Le projet propose une identité typologique claire tout en offrant une diversité de parcours intérieurs.

 

 

A la relative complexité du volume répond une écriture architecturale simple basée sur une peau constituée de panneaux affirmant la minéralité de l’objet dans ce paysage particulier. La structure en béton permet de résoudre dans la même mise en œuvre aussi bien la couverture des salles de classe et de l’aula (poutres nervurées) que celle de la salle omnisport (poutres de grande portée et sheds autoportants).