villa 'la concorde' et jardin public, genève

infos

Maître d’ouvrage  Ville de Genève
Lieu  Genève
Dates projet  1997 - 1998
Dates réalisation  1998 - 2000
Surface  940 m2
Volume  3'715 m3
Programme  Restauration d’une villa de maître du XVIIIe siècle et création d'un jardin public
Team projet  Philippe Meier, Frank Herbert, Marc Langenegger, Michèle Buchwalder, Thomas Bolliger, Philippe Ehinger, Christine Renold
Architecte paysagiste  Sylvie Visinand
Ingénieur civil  Dal Busco & Yokohama
Ingénieur e  Dumont-Schneider
Géomètre  Christian Haller
Photographe  Claudio Merlini

 

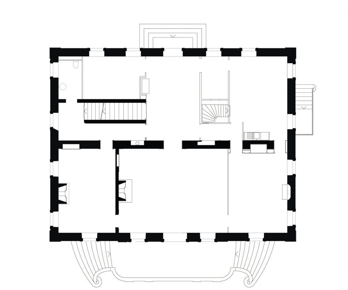
C’est par l’analyse du palimpsestre que représente tout objet architectural légué par l’histoire que l’on peut essayer de définir un processus de projet visant à intégrer tous les tenants et aboutissants d’une nouvelle affectation. Dans le cas de la villa 'La Concorde', l’essentiel a été de redonner sens à cette demeure par quelques opérations de rétablissement et de manipulations typologiques.
La 'réversibilité' fut aussi tout au long du processus de l’étude un élément récurent de notre démarche : nouvelle technicité apparente (gaine électrique en aluminium brut), 'mobilier' non rattaché à la typologique d’origine, posé sur pied (cuisine, salle de bains de la chambre d’hôtes).
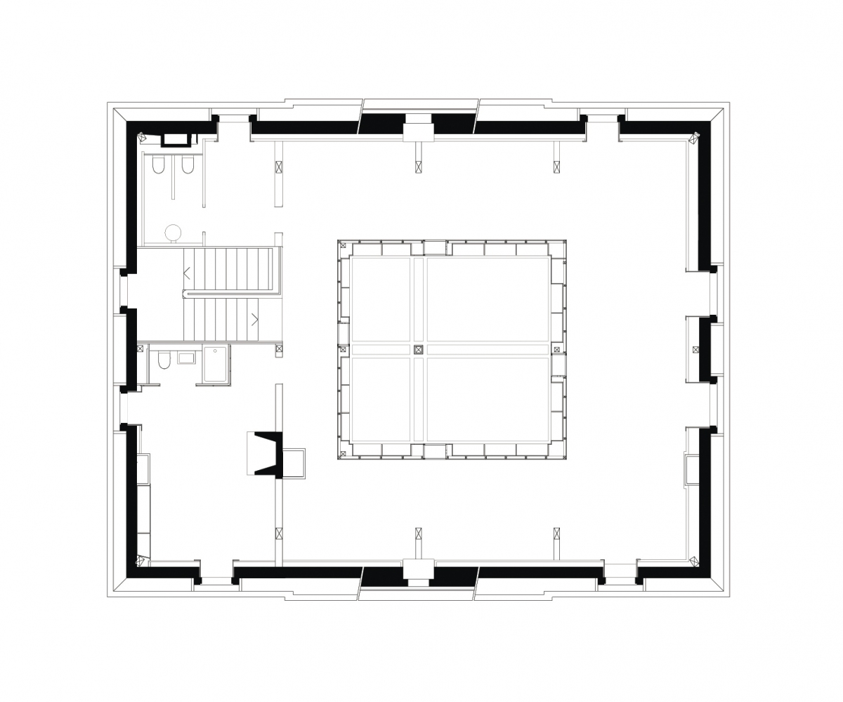
La seule partie qui fut sujette à transformation plus profonde fut le second niveau, là où Henri Bordier avait placé une bibliothèque pour sa majestueuse collection sur l’histoire de la Réforme. Cet effort se devait de trouver un répondant contemporain à la fois spatial et symbolique. Conçue comme une centralité, la nouvelle bibliothèque met en jeu les forces (structures), les formes (pente) de la première toiture du XVIIIe siècle. C’est un espace qui a cherché l’insertion dans son contexte tout en étant décontextualisé par la matérialité, par la couleur et la lumière : un lieu pour la lecture dans son silence et sa lumière

Le jardin de 'la Concorde' cherche à redonner une assise paysagère à un espace urbain qui a subi de profondes transformations au début du siècle. Il révèle des parcours internes qui se raccordent sur la ville. Quatre entrées ont ainsi été projetées. Un cheminement en croix divise le jardin en des lieux définis : un petit bois très ombragé dont la limite sud est composée d’un mur en béton, une prairie qui accueille un araucaria centenaire, un parterre devant la villa et des «chambres végétales» support à des jeux d’enfants. Le projet met en valeur le rapport architecture-nature, la géométrie de la première entrant en dialectique avec le flou de la seconde.