ems de la sorne, delémont

infos

Maître d’ouvrage  Privé
Lieu  Delémont, Jura
Dates projet  2016 - 2018
Dates réalisation  2018 - 2020
Surface  4'930 m2
Volume  18'700 m3
Programme  51 appartements protégés, 26 chambres ems
Team projet  Philippe Meier, Martin Jaques, Ana-Inès Pepermans, Amalia Jimenez, Arnaud Mottet, Charlotte van der Eynde, Olfa Kaabi, Nolwenn Chamorel  
Ingénieur civil  Buchs & Plumey SA
Ingénieur cv  Planair SA
Ingénieur e  Planair SA
Ingénieur s  Planair SA
Direction des travaux  Michel Hostettler
Géomètre  SiTaDeL Sàrl

 

 

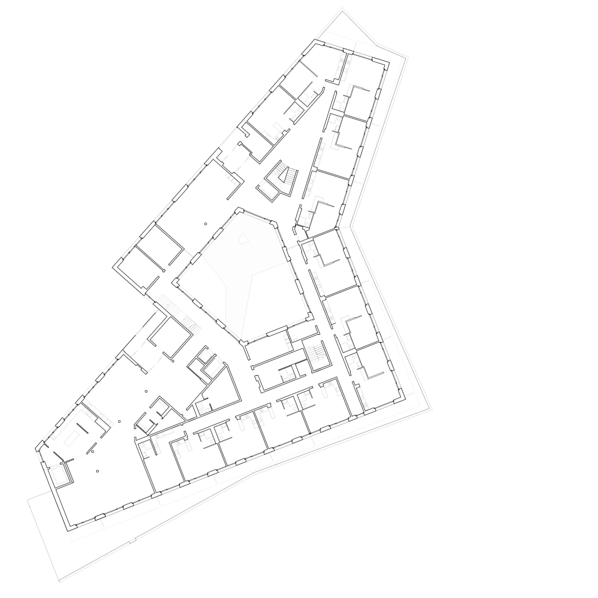
Niché au creux d’un méandre de la Sorne, le bâtiment se plie pour épouser les contours de l’environnement : le long de la rivière de larges terrasses s’ouvrent sur le monde végétal induit par l’hydrologie ; au nord le volume de faible gabarit s’inscrit dans la continuité du paysage bâti existant. Au cœur de cette forme hybride s’installe une cour ouverte à destination des aînés de l’institution. Les distributions horizontales bénéficient de l’apport de lumière de cette centralité et permet des parcours de qualité pour rejoindre son espace privé domestique, tout en faisant office de lieu de référence et de repérage.

 

 

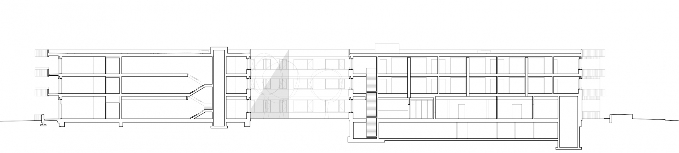
La construction en béton s’exprime dans sa forme décoffrée dans les espaces communs où le bois se marie avec le matériau brut. Les façades préfabriquées se déroulent de manière continue autour de la volumétrie complexe. Elles affichent des modénatures verticales décalées et arythmiques qui renvoient au monde aquatique et végétal qui entoure l’édifice. La teinte claire de la texture du béton teinté permet de capter les jeux d’ombres et de reflets que le site valorise par sa grande qualité paysagère.