pavillon du lac, mies

infos

Maître d’ouvrage  Privé
Lieu  Mies, Vaud
Dates projet  1994 - 1995
Dates réalisation  1996
Surface  60 m2
Volume  460 m3
Programme  agrandissement d'un couvert
Team projet  Philippe Meier, Frank Herbert, Annina Ruf 
Ingénieur civil  Pierre-André Bonjour
Direction des travaux  Pierre-André Bonjour
Géomètre  Oilivier Peitrequin
Architecte intérieur conseil  Caligo design
Architecte d'origine (1953 - 1954)  Georges et Hedwige Addor

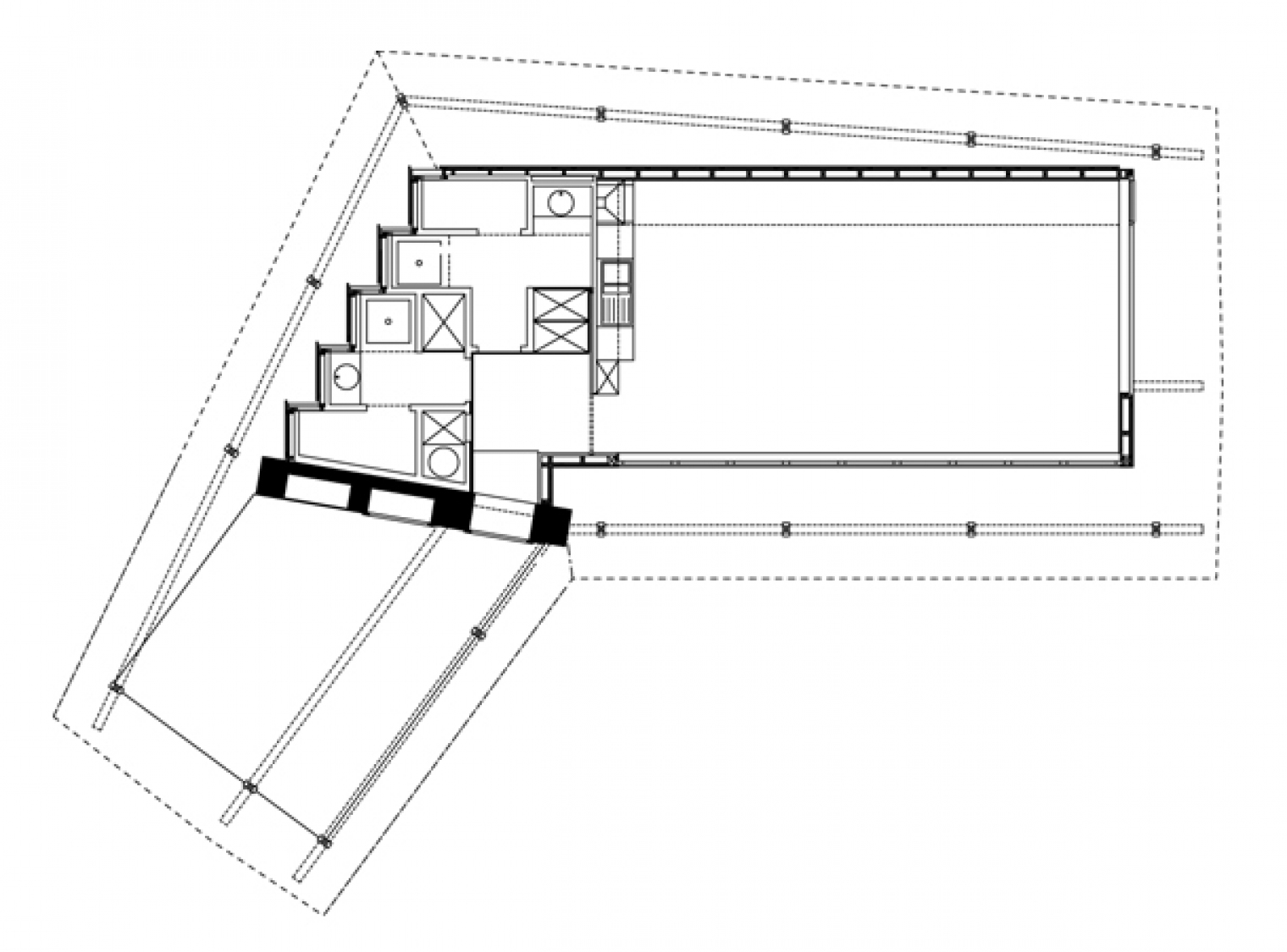
Dans une superbe propriété au bord du lac Léman, face au Mont-Blanc, il s’est agi d’agrandir un petit couvert, réalisé dans les années 50 par l’architecte genevois Georges Addor, pour en faire un pavillon d’été. Le nouveau dispositif reprend les qualités de la composition originale en lui empruntant son registre plastique dans le dessin des structures et en complétant son intervention sur le site.

La peau extérieure est en lames de sapin et en panneaux de MDF peints en blanc, couleur de prédilection de la marine lacustre. Un grand vitrage fixe s’ouvre sur le lac et le Mont-Blanc et, sur le jardin, un pan de verre en accordéon permet d’obtenir une continuité spatiale entre l’intérieur et l’extérieur.

La matière est laissée volontairement brute et chaleureuse: parquet en iroko non traité, parois en cèdre rouge brut de sciage, plafond tendu, portes et cuisine en mélaminé gris et serrurerie en inox.