logements sur une friche, lausanne

infos

Maître d’ouvrage  Ville de Lausanne
Lieu  Lausanne, Vaud
Concours (Europan 4)  1996
Surface  38'450 m2
Volume  119'150 m3
Programme  logements sociaux, bureaux, commerces, parking souterrain
Team projet  Philippe Meier, Annina Ruf 

 

 

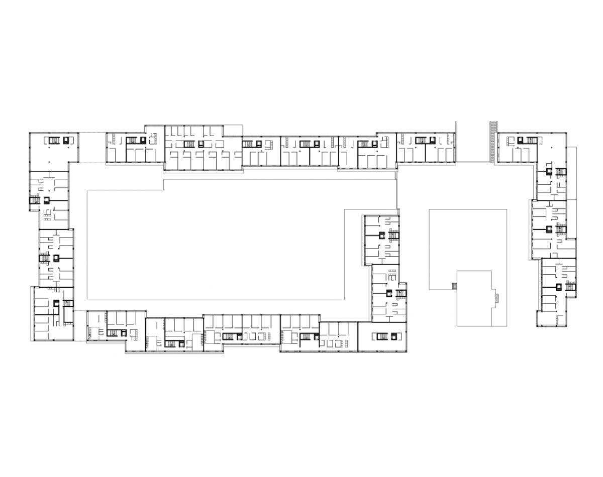
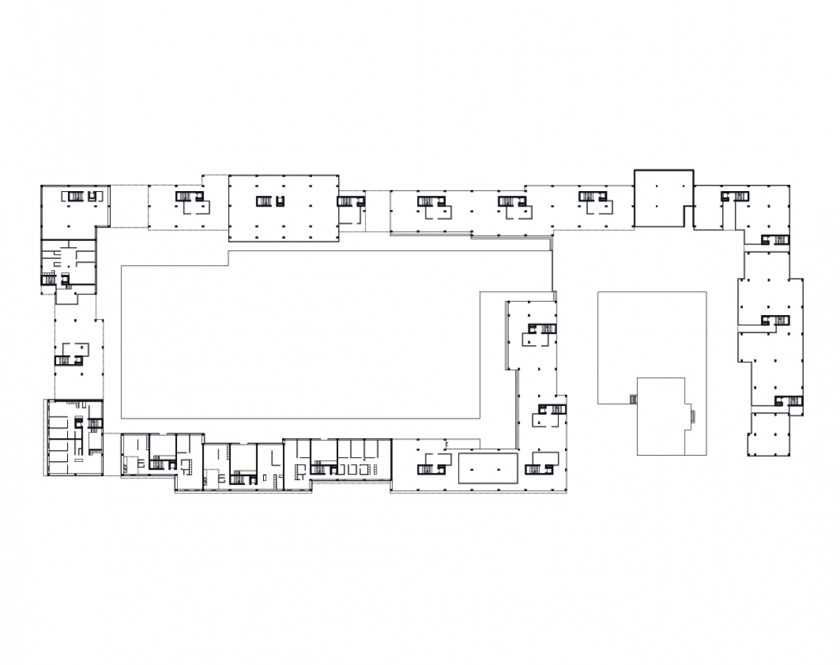
Le site de Prélaz est un territoire de grande échelle hérité d’une activité obsolète : un plateau artificiel, installé dans la pente biaise du coteau pour accueillir les véhicules des transports publics de la ville de Lausanne. Il s’agit d’une situation de tabula rasa qui nourrit l’occasion de réaliser un 'grand ensemble' de logements, tout en favorisant la mixité d’activités pour créer une affluence de personnes, même au-delà de l’ensemble projeté.

Les immeubles sont conçus partiellement sur pilotis autour d’un grand jardin et d’une place minérale qui regroupe les commerces. La forme du bâti qui se 'désarticule' doucement permet de répondre localement à des exceptions du tissu environnant de même qu’elle autorise un jeu d’ombres sur le grand volume qui s’enroule autour des deux vides urbains créés.

 

 

La structure, définie par une portée constante de 7,20 m., autorise toutes les superpositions : au sous-sol le parking, au rez-de-chaussée les commerces, aux étages les différentes activités comprenant autant des logements que des  bureaux.

Les façades sont composées de panneaux en bois préfabriqués et de fenêtres coulissantes 'à la française'. Un système de volets coulissants vient compléter ce principe de façade très simple et donne à l’usager la possibilité de contrôler la lumière.