étude d'avocats, 1er prix, genève

infos

Maître d’ouvrage  Schellenberg Wittmer
Lieu  Genève
Concours sur invitation  2011 (1er prix)
Dates projet  2011
Dates réalisation  2012
Surface  880 m2
Volume  2'720 m3
Programme  30 bureaux, salle de conférence, cafétaria
Team projet  Ana-Inès Pepermans, Philippe Meier, Ariane Poncet, Martin Jaques, Ludovic Durand, Tiago Mendes, Julio Lopez, Clara Caldeira
Ingénieur CV  Riedweg & Gendre
Ingénieur acousticien  Architecture & Acoustique
Ingénieur sécurité  Orqual
Artiste  Daniel Schlaepfer
Photographe  Yves André

 

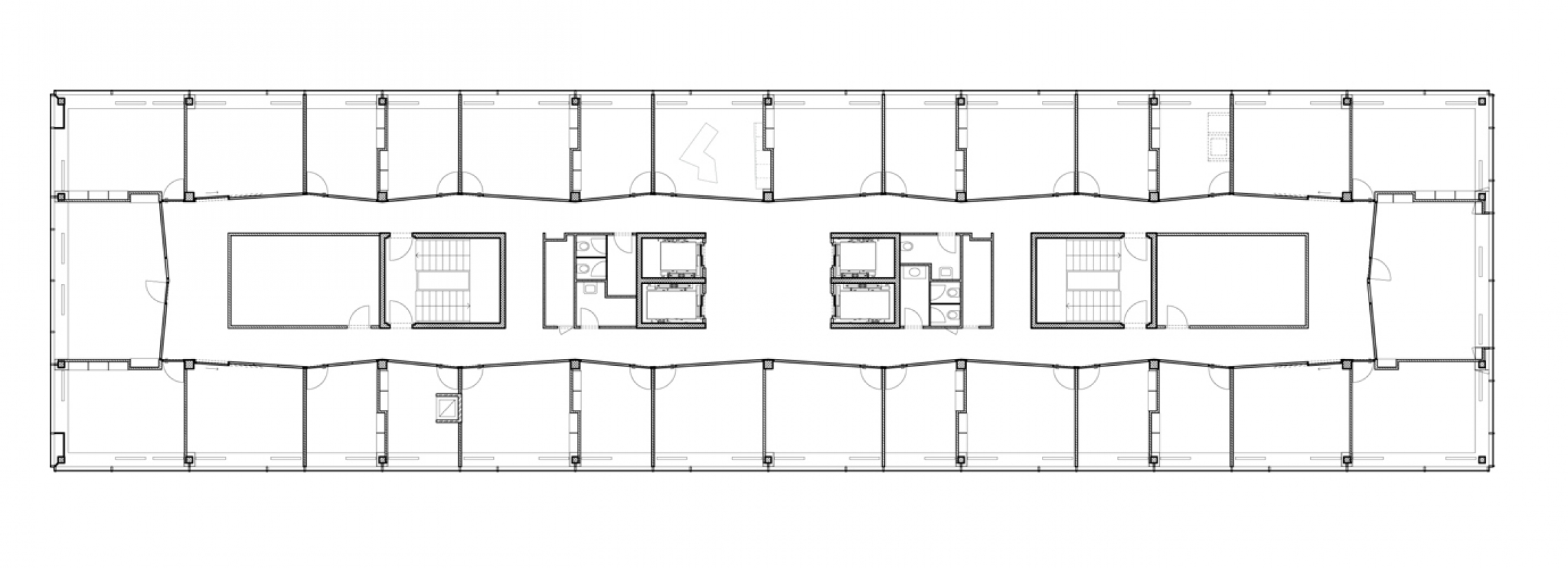
Le projet de transformation du premier étage de l’immeuble de l’étude Schellenberg Wittmer cherche à mettre en valeur l’apport de lumière naturelle au coeur de l’édifice. Il parle aussi d’ouvertures, de continuités spatiales et d’échanges au sein d’un grand plateau de bureaux. Le caractère dimensionnel du bâtiment devient réellement perceptible et mis en scène pour les utilisateurs par des notions de profondeur de champ et de transparence. 
Partant des contraintes impératives que sont la structure, les locaux de service au centre et la technique existante, la solution proposée consiste à mettre en place une peau vitrée «ondulante» entre les bureaux et le couloir. A partir de cette «paroi de lumière» s’installent les divisions entre les différents espaces demandés. On y trouve des bureaux soit pour une personne, soit pour deux. Le tout est modulé en fonction de la trame structurelle existante. 

 

Le verre des parois vitrées est conçu et traité par effet de sablage coloré progressif afin de permettre l’apport de lumière, de la façade jusqu’aux couloirs, tout en offrant l’intimité et la concentration nécessaire aux occupants des bureaux. Ce dispositif qui  joue sur la qualité de la transparence du verre, bénéficié de l’intervention de l’artiste Daniel Schlaepfer dans son design final. Les reflets des blocs de service dans le verre légèrement 'plié' animent les parcours dans une fluidité et une continuité de matières. 
L’analyse des contraintes liées à la sécurité incendie a permis de revoir le concept général de l’étage et de supprimer les portes de recoupement intermédiaires dans les circulations. L’ensemble est donc spatialement plus fluide, et visuellement 'étiré' sur toute la longueur du plateau.